Clooncormack (Closest Eircode F12 V4P9), Hollymount, Mayo

  • Unconditional Online Auction Sale
  • Guide Price* : €20000

Property Partners Gill & Glynn are pleased to present to market this spacious 0.4695-acre residential land with foundations in is now available for sale in Hollymount, County Mayo.

Description

Closest Eircode F12 V4P9

Property Partners Gill & Glynn are pleased to present to market this spacious 0.4695-acre residential land with foundations in is now available for sale in Hollymount, County Mayo. The property is priced at €20,000 and offers an excellent opportunity for those looking to build their dream home in a peaceful setting.

Located in close proximity to Hollymount village, this site provides easy access to all amenities while still offering a sense of privacy and tranquillity.This property is ideal for anyone seeking a quiet and serene lifestyle.

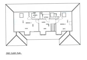
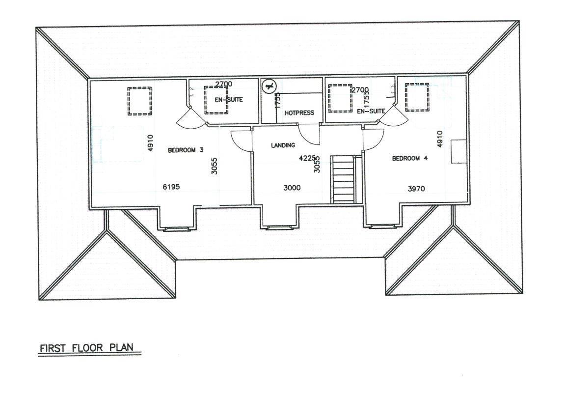
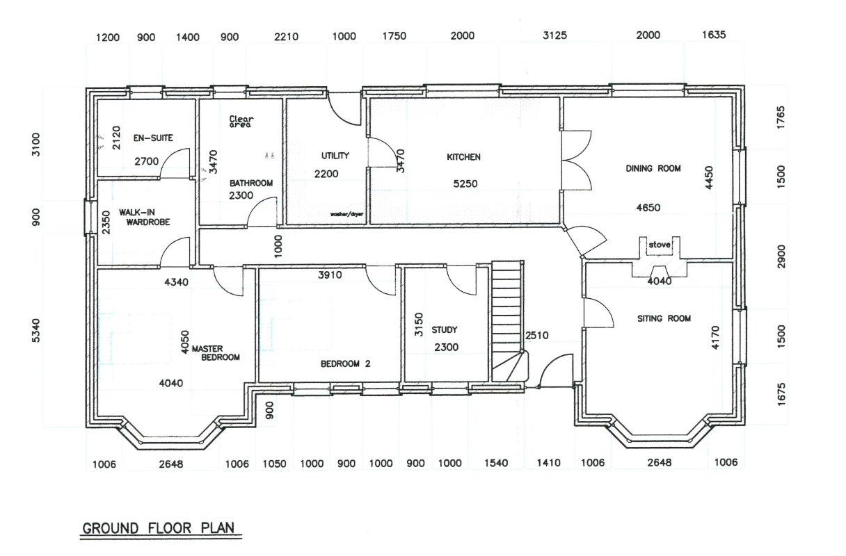
The land comes with foundations already in place, which eliminates the need for costly excavation and groundwork. This offers the buyer a head start on their home building project.

Water on site connected to local group scheme. Percolation test carried out successfully in October 2023.

Location

Hollymount, County Mayo is a charming village that has a lot to offer its residents, including a rich history and a variety of recreational activities. The village is located in the heart of County Mayo and is within easy reach of several popular attractions, making it an ideal place to live.

The area is surrounded by beautiful scenery and is home to several walking trails and cycling routes. The nearby Caher River provides an excellent opportunity for fishing and kayaking, while the historic Ballinrobe Golf Club is just a short drive away.The village is home to several historic buildings, including the impressive St. Colman's Church, which dates back to the 15th century. The nearby village of Ballinrobe is also steeped in history, with several noteworthy landmarks such as the 14th century Ballinrobe Castle.

Overall, this residential site for sale in Hollymount, County Mayo offers an excellent opportunity for anyone seeking a quiet and peaceful lifestyle in a charming village.

* Generally speaking Guide Prices are provided as an indication of each seller's minimum expectation, i.e. 'The Reserve'. They are not necessarily figures which a property will sell for and may change at any time prior to the auction. Virtually every property will be offered subject to a Reserve (a figure below which the Auctioneer cannot sell the property during the auction) which we expect will be set within the Guide Range or no more than 10% above a single figure Guide.

Loading the bidding panel...

Agreement Documents

Additional Documents

Guide to Buying at Auction

Make an Enquiry

Submit an enquiry and someone will be in contact shortly.

 
*  
*  
*
*
*

Share