Lot No. 2 - Cappaghnagapple, Clonbur, Galway, F12X765

  • Unconditional Online Auction Sale

Property Partners Emma Gill is pleased to present this exciting option that combines a charming, two-bedroom country cottage and converted barn that offers an attractive studio-style space - ideal for a home office or even a studio for the creative type.

Description

Nestled at the foot of gentle, rolling hills and boasting breathtaking lake views, Ceapach Na gCapall Cottage presents a unique prospect for someone looking to escape the rat race and make their own mark on a generous holding that can accommodate both home and work life needs.

Set on a 0.73 acre site, Cepach na gCapall sits in a tranquil, rural idyll yet enjoys easy access to some of the west's leading cultural and commercial centres.

The cottage was originally built in the 1950s.

Recent renovations have lent it a contemporary, light and airy feel while retaining much of the charm of its mid-20th century heritage.

In essence it's a blank canvass, awaiting the unique stamp of its next owner.

Location

Located on the Cornamona road from Clonbur, the property is just a short drive from Cong the home of the internationally-renowned Ashford Castle.

Other local attractions include the stunning Loughs Mask and Corrib together with scenic walks, a golf course, racecourse, restaurants, bars and much more.

A 20-minute drive takes you to the well-serviced town of Ballinrobe and the county town of Castlebar and tourism hotspot of Westport are just a 50-minute commute, while an hour's drive will have you in Galway.

Whilst every care has been taken in the preparation of these details and in the provision of any general data and information about this property, but it should be noted that any information, written or verbal, provided by Property Partners Emma Gill or their client is issued for guidance purposes only, is not contractual and does not form part of any legal documentation. Any floor plan provided is for illustrative purposes only and should be used as such by any prospective purchaser or tenant. The accuracy of measurement of doors, windows, rooms and any other items are approximate and no responsibility is taken for any error, omission or mis-statement.

Accommodation

Accommodation
The accommodation includes a hallway and a generous living area with a large, solid fuel stove.
The adjoining, quaint kitchen is accessed via a characterful arch and boasts bespoke pine worktops and units.

The cottage has two double bedrooms and a main bathroom with an electric shower.
It also has a novel loft room with Velux windows which is accessed via a staircase from the living room and is perfect for a work-from-home set-up.

The property is heated via a dual oil/back boiler system. Water is provided by Clonbur Water and it's through Irish Water, but this will have to be connected. There is an spring in the grounds which is currently not being utilised.

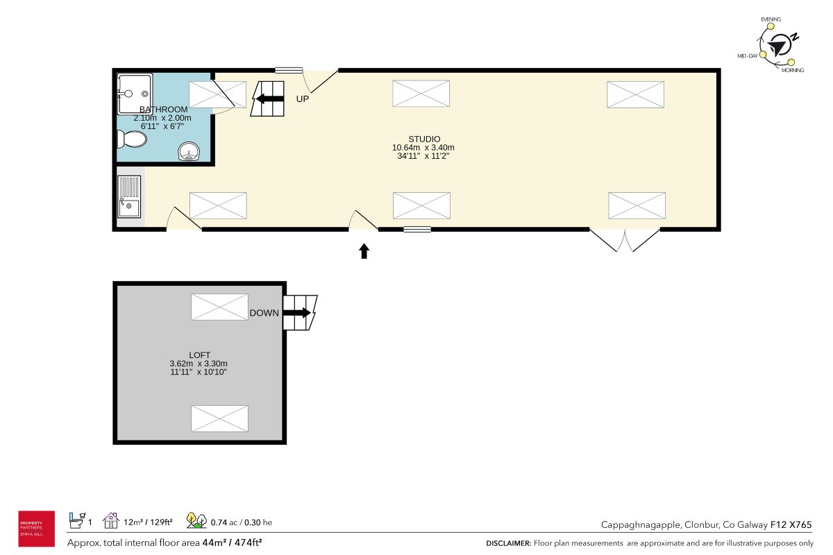
Studio apartment
The spacious studio apartment is just a few short steps from the main cottage and could be adapted for a myriad of uses.

* Generally speaking Guide Prices are provided as an indication of each seller's minimum expectation, i.e. 'The Reserve'. They are not necessarily figures which a property will sell for and may change at any time prior to the auction. Virtually every property will be offered subject to a Reserve (a figure below which the Auctioneer cannot sell the property during the auction) which we expect will be set within the Guide Range or no more than 10% above a single figure Guide.

Loading the bidding panel...

Office Contact

Emma Gill
091884000

Agreement Documents

Additional Documents

Guide to Buying at Auction

Related Documentation

Make an Enquiry

Submit an enquiry and someone will be in contact shortly.

 
*  
*  
*
*
*

Share